Casa indipendente in vendita

Calvi, Via ponte piano - De Gregorio
€ 75.000
3 locali 3 locali
90 Mq 90 Mq
1 bagno 1 bagno

Casa indipendente in vendita

Calvi, Via ponte piano - De Gregorio

Descrizione annuncio

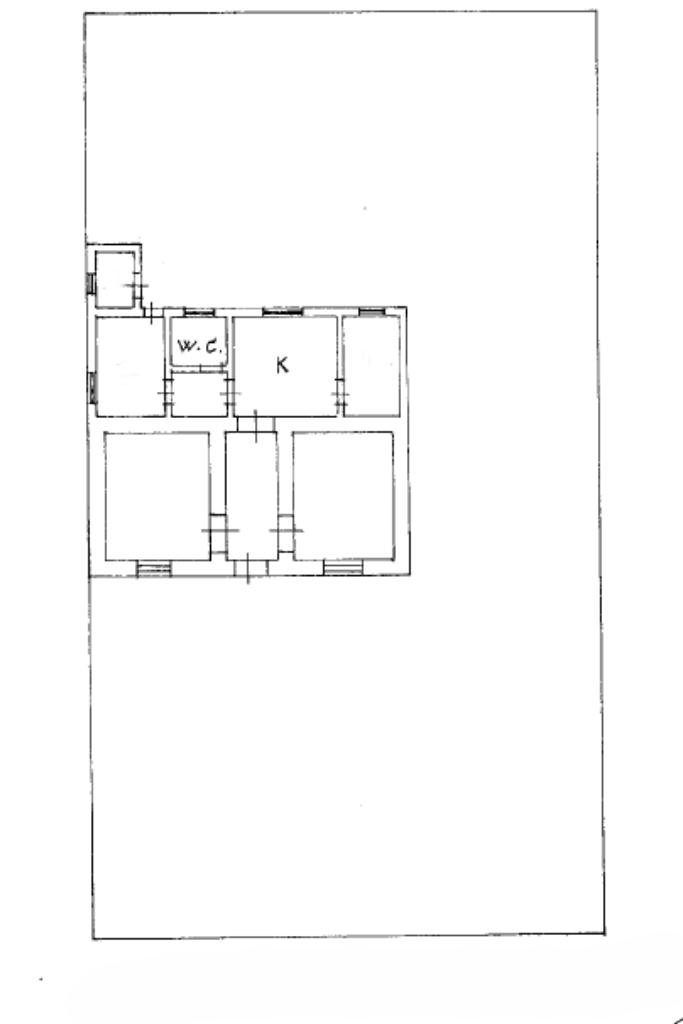
Proponiamo in vendita casa indipendente su un unico livello di 3 vani ed accessori situata a soli 2km dal raccordo autostradale Napoli/Bari.

L'immobile è composto da due ampie camere luminose, cucina abitabile con camino oltre accessori e si trova in una zona tranquilla ma strategica.

La proprietà inoltre include un'ampia corte esclusiva e 2700 mq di terreno circostante con all'interno due pozzi ad uso esclusivo.

Non perdere l'opportunità di poter personalizzare gli spazi di questo immobile con tutti i comfort moderni senza rinunciare ad una posizione strategica ma in contesto tranquillo con ampi spazi all'aperto da vivere!

Mostra tutto

Nelle vicinanze

Ristoranti Ristoranti
Agriturismo Villa Luisa
1,4 Km
Mostra tutto

Caratteristiche

Rif.:
61171176
Piano:
Rialzato
Posti auto:
3
Camere da letto:
2
Arredamento:
Assente
Condizionamento:
Assente
Mostra tutto
Prezzo Prezzo
€ 75.000
Rata mutuo Rata mutuo
€ 358 / mese
Spese annue Spese annue
€ 0
Proponi il tuo prezzoProponi il tuo prezzo

Classe Energetica

G
G
G
G
G
G
G
G
G
EP globale non rinnovabile:
400.00 kW h/m² anno
EP invernale del fabbricato:
EP estiva del fabbricato:
Anno di costruzione:
1965
Riscaldamento:
Autonomo
Tipo impianto:
A stufa
Tipo alimentazione:
Altro

Ti interessa visionare l'immobile?

Fissa un appuntamento  Fissa un appuntamento

Richiedi informazioni

Clicca su Leggi per aprire l'informativa
* Questi campi sono obbligatori

Calcola il tuo mutuo

Semplice e senza impegno
Anticipo

( % )
Mutuo

( % )

pochi semplici passi

inserisci i tuoi dati
Questionario completato
Grazie per aver richiesto un appuntamento senza impegno con un nostro Consulente del Credito e Assicurativo.

Hai inserito correttamente tutti i dati necessari e a breve riceverai una e-mail con un link da convalidare per inviare i tuoi dati.
Affiliato
Studio San Giorgio Sas
Via Cerza, 24 82018 San Giorgio Del Sannio (BN)

Il nostro staff


  • Antonio De Cicco
    Collaboratore

  • Alessandro Di Pietro
    Affiliato

  • Antonio Reno
    Collaboratore

  • Debora D' Alessandro
    Coordinatrice
Via Cerza, 24 82018 San Giorgio Del Sannio (BN)
Zona: San Giorgio Del Sannio
Mostra su mappa
Orari: 08.45 - 12.30/ 15.30 - 19.30 Sabato 9.00 - 12.30 Domenica chiusi.
Affiliato
Studio San Giorgio Sas
Via Cerza, 24 82018 San Giorgio Del Sannio (BN)

2026 Tecnocasa Franchising S.p.A. - P. IVA 08365160152 - Via Monte Bianco 60/A 20089 Rozzano (MI). Ogni agenzia ha un proprio titolare ed è autonoma. Privacy policy | Policy utilizzo | Cookie policy